1283 Old Route 17, Harris, NY 12734

21 Total Photos [Click to View All]

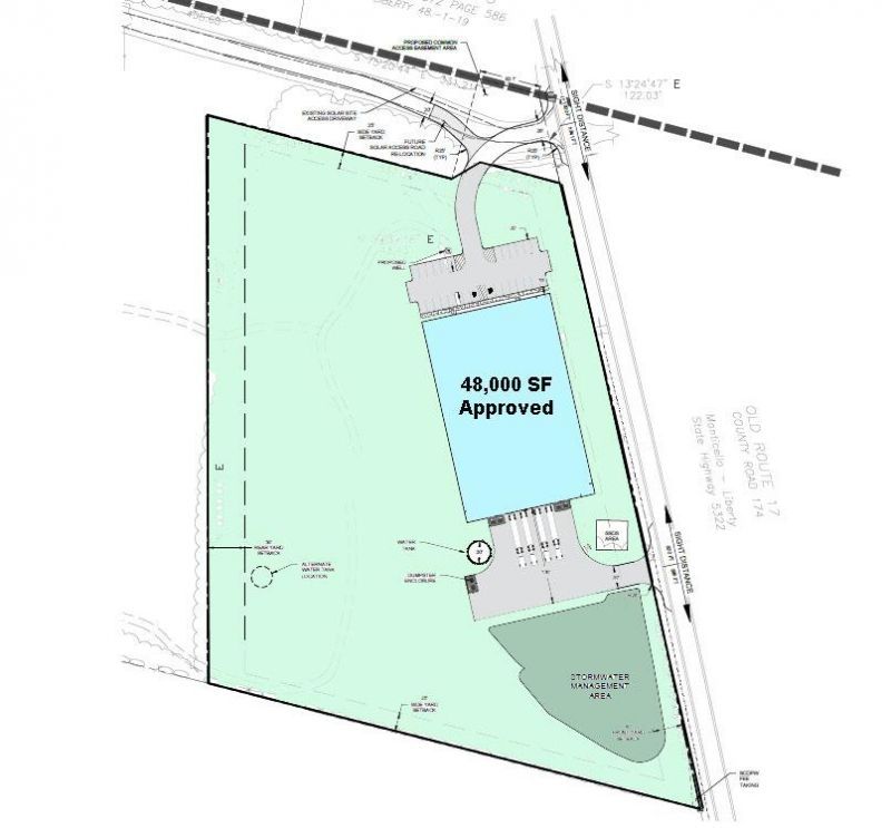
Property Description

This newly formed (via subdivision) 10 acre parcel has conditional final approval for a 48,000 sqft industrial building. Plans provide for 4 loading docks and abundant 28 car parking lot. Well and septic design has been completed along with design for a water storage tank to provide sprinklers for the building to be constructed. 35' building height. Possible build to suit. The building design easily provides for 2 divisible spaces of 24,000 sqft. each.

1283 Old Route 17 | MLS# 872349

This commercial property located at 1283 Old Route 17, Harris, NY 12734 is currently listed for sale with an asking price of $1,200,000. Search Harris real estate on www.timberlandproperties.com today.

Gallery

Property Features

Property Type: Commercial -
Cooling: None
Heating: None
Lot Size: 10.00 Acres
Taxes: $0

Feature Descriptions

Building Area Total: 48000
Business Type: Other
Days on Site: 272
Exterior: Other
On Market Date: 2025-06-03
Parcel Number: 484689.001.000-0001-003.100/0000
Property Attached Y/N: 1
Rental Term: Monthly
Sewer: None
Utilities: Electricity Available
Water: None

Demographics

Listed By / Shown By

Listing By

Agency Name: Rand Commercial
Agency Contact: 845-744-2095

Shown By

Agency Title: Timberland Properties
Agency Phone: 845-586-3321

IDX logo

Login to My Homefinder

Pixel